Full Details
Modern One-Bedroom Apartment to Let | Lombard Square, SE28 - Discover contemporary living in this beautifully presented one-bedroom, one-bathroom apartment, ideally situated within the sought-after Lombard Square development in SE28. Thoughtfully designed, this home blends comfort, style, and practicality and is ideally located in one of South East London’s newest and most vibrant neighbourhoods.
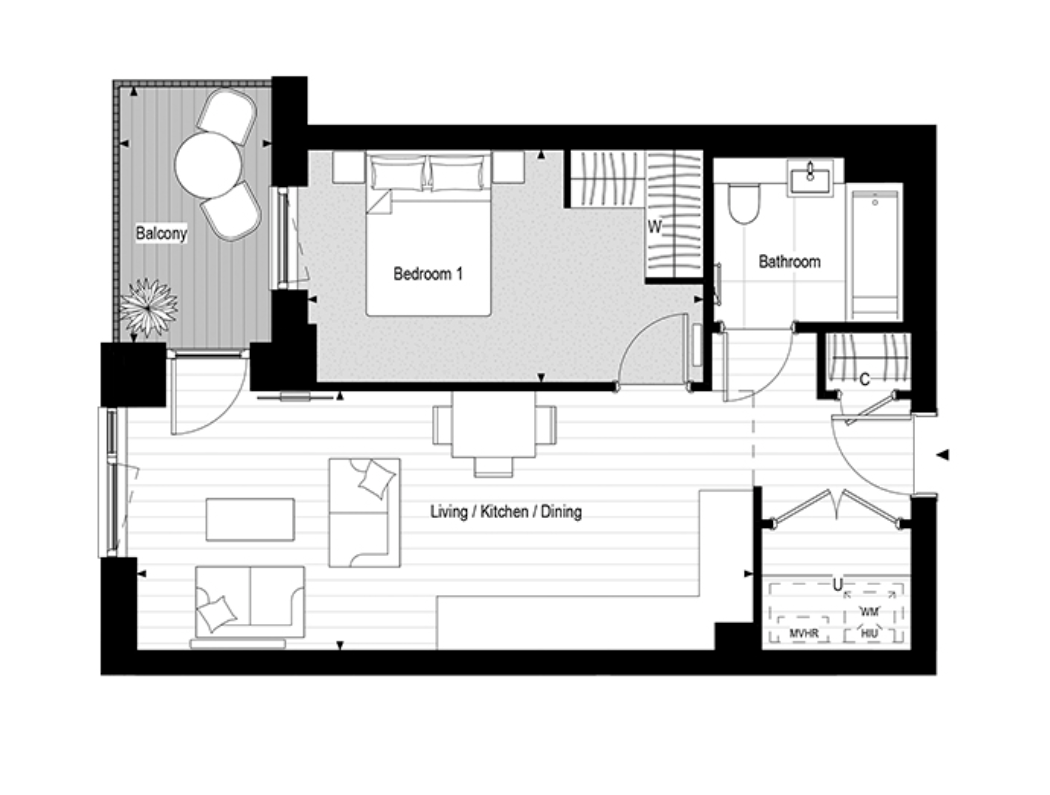
The bright open-plan living space features premium finishes and leads out to a private balcony — perfect for relaxing after work or entertaining friends. The modern kitchen is fully fitted with integrated appliances and sleek cabinetry, offering both functionality and sophistication.
The spacious bedroom includes built-in wardrobes, while the elegant bathroom is finished to a high contemporary standard.
Residents of Lombard Square enjoy access to beautifully landscaped communal gardens, a 24-hour concierge service, and an optional on-site gym. With excellent transport links nearby — including Woolwich Arsenal Station and the Elizabeth Line — Canary Wharf, the City, and Central London are all easily accessible.
This exceptional apartment offers a stylish and convenient base for modern London living and urban connectivity!















































1
1